第3章 传播和信道建模
无线电波传播知识是无线通信发展的基石。传播代表了移动和固定电信两个最重要的区别。
第一个区别是电磁波传播的物理介质不同。固网的传输介质主要是传输线缆,例如光纤和同轴铜电缆。而移动通信则与之相反,介质是包含发射机和接收机在内的整个环境。物质密度越大,吸收和反射的无线电波能量越大,在这些物质之间传播的主要媒介是自由空间。尽管可以通过使用先进的天线技术控制发送信号指向所需的接收机方向,然而由于传播环境无法做到链路之间的完全隔离,因此接收机收到的通常是混合了从不同源发出的信号,从而造成了大量干扰。
移动通信与固网第二个区别是信道随时间和空间的变化剧烈。熟知这些变化的特征在优化传输技术以及进行网络规划时至关重要。
本章全面概述了移动通信中无线传播信道的影响,并对一些关键领域做了详细阐述。章节安排如下,3.1节基于电磁波理论解释无线电波传播的基本原理。3.2节介绍通常用于表征传播信道的特征量,而相应的试验结果在3.3节中进行详解。3.4节介绍3GPP和ITU-R提供的最新的5G信道建模。将重点放在理解模型以及建模的精确度和真实性的程度。并且指出模型组件需要进一步改进的地方。最后,在3.5节中对本章进行了总结,并提出未来的工作方向。
3.1 传播的基本原理
本节介绍了传播的一些基本原理,来帮助理解在移动通信环境中对无线电波信道进行表征和建模。关于电磁波理论的全面描述读者可参考标准教科书如参考文献。传播主要关注的是发射天线和接收天线之间的无线电波路径。有时在传播建模中将天线与传播的影响混合在一起会是个问题,我们将会在3.1.2节中解决这个问题。当然在传播研究中也许无法避免涉及天线,虽然研究的主要目的是测量特定空间点或特定传播方向的电磁场。本节阐述了一些无线电波传播的基本方面。3.1.1节解释了什么是电磁波。3.1.2节讨论自由空间传播,3.1.3节介绍了基本的传播机制。
3.1.1 电磁波
麦克斯韦方程组在无源空间区域的解集定义了电磁波的基本定律。解集可以用不同系列的展开来表示。我们将在这里专注于平面波展开,这对理解传播特性非常有用。而且,平面波是标准信道模型中最常见的表现形式。对于平面波,电场E和磁场H是相等的,彼此正交并与Poynting矢量正交:

它指向传播方向。定义一个标准正交参考系(e1, e2, e3),平面波的电场由下式给出:

其中x是空间坐标,t是时间,k=
,其中λ是波长,是波的角频率。相应的磁场由下式给出:

其中和分别是介电常数和磁导率。图3-1给出了由下面三种电场定义的平面波的三种情况:

其中1)对应于线性极化;2)对应于圆极化;3)对应于椭圆极化。可以清楚地看到,E场和H场在每个时刻都是正交的并且强度相等。平面波由六个相应的自由度定义:1)极化椭圆轴比;2)极化椭圆主轴旋转角度;3)场幅度;4)波相位;5)Poynting矢量极角;6)Poynting矢量方位角。这些自由度也可以由空间点处的电矢量场和磁矢量场表示。在这种情况下电磁波场被视为一系列平面波的总和,这样就导致磁场和电场是不相关的。然而,对于任何波矢量k,平面波仅支持两个正交极化状态。
3.1.2 自由空间传播
为了理解基本的传播原理,必须全面了解自由空间传播。原则上,传播应排除天线的影响。然而在现实中,在不使用天线的情况下研究传播是不可能的。这里我们将关注一些基本天线的情况,在这些情况下我们很清楚哪些影响是由天线产生的,哪些影响是由于传播造成的。通常用全向辐射天线作参考。在自由空间里,这样两个天线之间的传输损耗(如图3-2所示)称为自由空间基本传输损耗(由ITU-R定义[8]),以dB为单位给出:

其中d是天线之间的距离,是波长。虽然全向天线通常作为参考天线使用,但是已经证明它并不实用[16, 33]。任意天线方向图所对应的表达式为:


其中Gt和Gr分别是发射机和接收机的天线增益。应当注意到,公式(3-6)是基于发射和接收天线在方向和极化上完全匹配的假设。
从图3-2可以清楚地看出,自由空间基本传输损耗与频率相关。这同样适用于公式(3-6)中指定天线方向图的任何类型的天线(偶极子、喇叭、贴片等)。由于给定类型的天线形状不随频率而改变,因此远场辐射也不会随频率变化。然而,天线的尺寸与波长成正比,因此,天线孔径(有效天线面积)与2成正比。因此使用任何类型的天线(固定增益和天线方向图)通过自由空间传输接收到的功率与频率f有关,用dB表示就是–20logf。这确实是符合公式(3-6)固定天线增益的结果。需要注意到,这种频率依赖性是纯天线作用。从传播角度,当用固定增益天线发射功率时,没有频率依赖性,因为在这种情况下,任何远场处的功率通量密度都与频率无关。

替代固定接收天线增益的另外一种方式是保持接收天线孔径恒定,不随频率改变。当使用固定发射增益天线时,接收信号功率与接收机的功率通量密度成正比,而与频率无关。当在自由空间链路的发送端也使用固定天线孔径时,随着频率升高传输损耗确实会减少,与–20log(f)成正比。这可以通过天线增益来解释,固定天线孔径的天线增益随频率升高而增加,接收机信号强度相应增大。然而,该增益仅在天线的远场中有效。对于毫米波范围内的高频,远场可能在相当远的距离处,这取决于天线孔径的大小。在近场区域中,发射波瓣宽度也许远小于接收天线孔径。在这种情况下,传输损耗实际上可以忽略不计(0 dB)。但应注意,由于物理原因,无法获得传输增益(即损耗 < 0 dB)。而且,大孔径天线的天线方向需要指向链路另一端的天线,才能具有高增益和窄波瓣。
上述所有情况如图3-3所示,其中仿真了100 m自由空间传输链路,其中固定增益天线(G = 5 dBi),固定正方形的天线孔径为(30 cm×30 cm)。该固定孔径在500 MHz频率时天线增益为5 dBi,在100 GHz频率时天线增益为51 dBi。图中清楚地显示了当传输链路的两端都使用固定孔径的天线时,从远场区域到近场区域的过渡介于200~500 GHz之间。
自由空间基本传输损耗在文献中通常被称为自由空间路径损耗。这可能有其历史原因。然而,这种用法有些问题,因为给人的印象是自由空间传播损耗可能与频率有关,但如上所述,事实并非如此。因此,本书中避免使用路径损耗,而是使用更恰当的传输损耗的概念。

3.1.3 散射和吸收
真实环境中的传播条件很少与自由空间相似。通常传输链路所处环境中结构复杂、物体众多,会发散电磁波的传播。在城市环境中,通常是些人造物体,如建筑物和车辆。而在农村环境中,主要是植被和地理构造。散射可以分为几种基本类型:
- 镜面反射和折射:在足够平坦和较大的表面上,电磁波散射符合菲涅耳(Fresnel)反射和折射公式。在光学中,这种类型的散射会导致镜面反射和图像折射。根据菲涅耳公式,散射要求表面的尺寸必须比一个菲涅耳区大很多。
- 衍射:当平坦表面的尺寸在一个菲涅耳区级别或更小时,可以用衍射理论来更准确地描述散射。对于处在阻挡电磁波传播的物体后面的阴影区也适用于此种情况。
- 漫射:任何物体或结构在几个菲涅耳区都不是光滑和均匀的,那么电磁波将以漫射的方式散射。这通常是受物体粗糙表面(如石头或砖墙、植被和地面)的影响。
- 吸收:在某些场景下,对波的吸收也是需要考虑的一个重要方面。例如,传输时植被吸收的能量可能很大。从室外到位于建筑物内位置的传输也是如此。另外,远程传输时,也必须考虑大气的吸收。
3.2 传播信道特性
了解无线传播信道的特性对开发无线传输技术至关重要。在接近自由空间的传播条件下(如微波链路),面临的主要挑战是如何确定直接路径的时变传输损耗。在这种情况下,损耗变化主要由降雨引起,因此降雨强度的概率是值得关注的。然而,蜂窝通信信道的特征基于散射环境、终端移动性和一些非静止的散射物体。因此,接收信号可能随时间和空间变化很大。而且,在蜂窝场景中,信号传播受到多径传播的影响,即接收到的信号是大量信号波的混合,在环境中被散射的信号波以不同的方向和时延到达接收端。对于多径信道,通常用一组在接收天线合并的离散(平面)波来建模。每个离散波是由从发射天线通过散射(直接路径除外)到达接收天线的路径决定。在典型的移动通信场景中,信道表征所需的路径数量可能非常大,可高达几万。对于在发射天线单元n和接收天线单元m之间信道Hmn的平面波展开,用数学公式表征为:

其中Al是N个平面波中第l个复极化幅度矩阵,
和
是对应于波矢量
和
的复极化天线方向图矢量,
和
是相对于天线参考点的接收和发射天线单元的位置矢量,w是角频率
,
是发射和接收天线参考点之间的波传播时延,
是多普勒角频率,t是时间。天线方向图基于局部参考系来定义。因此使用固定局部坐标系(x,y,z,或极坐标
)。基于固定参考系,使用额外的方向相关参考系来指定不同方向上相应的极化方向图分量。图3-4表示了方向相关参考系的坐标轴的定义,包括:指向方位角增加方向的单位矢量
,仰角方向
和半径增加的距离
。自由空间传播并且使用单位增益天线的极化幅度由下式给出:

其中负号是由于接收机坐标系相对于发射机坐标系旋转了180度。发射天线和接收天线满足公式(3-4)中三种极化情况中的任何一种,信道增益将由下式给出:

正如预期的那样,对应于公式(3-5)给出的自由空间损耗Lbf。当接收天线极化方向与发射天线极化方向正交时,我们有:

公式(3-4)中,对应的正交极化由下式给出:


3.2.1 频率–时延域
公式(3-7)的信道响应定义在域,即它是无线频率f的函数。有一种互补的等效方法,通过信道的冲击响应
,即时延
的函数,在时延域中来定义信道。这两个域之间的关系由相应的傅里叶变换给出:

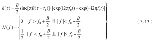
无线数据传输使用了围绕特定载波频率f0的连续波调制。调制速度和相应的比特率与所用带宽B成正比。信道带限滤波器的特性决定了相应冲激响应的形状。这可以通过具有单个时延为正的多径分量的信道来示例,信道有一个均匀带通滤波器:

对于f0 = 2 GHz,B = 200 MHz和1= 10 ns的信道响应如图3-5所示。在通带中,由于载波频率?,产生h()的快速振荡是很明显的。而且,实际信道响应需要H(f)的正负频率。为方便起见,信道通常在基带来描述,即频率被转换为零均值,即f' = f – f0:


在下文中,如果没有特别指出是通带的情况下,都将使用基带信道,f表示基带的频率。
公式(3-14)中的均匀频率滤波器在时延域的主脉冲周围产生大量的振铃或旁瓣。通过选择不同的频率滤波器可以减轻此类影响,比如常用的Hann滤波器:

图3-6给出了均匀频率滤波器和Hann滤波器的信道响应。Hann滤波器的旁瓣明显小于均匀滤波器的旁瓣。

当在频域中对信道建模时,会使用一些具有不同时延和不同幅度的不同波的总和,由此模拟环境中散射的结果。我们将通过典型的指数衰减信道来说明这一点:

其中
是随机相位,
是均方根(Root Mean Square,RMS)时延扩展,定义如下:

对于时延扩展明显大于1/B(B是带宽)的场景,即
>1/B,信道具有频率选择性,意味着信号在该频带上衰减显著。图3-7中显示了对应于
= 20 ns和 = 100 ns时的信道。以及两种带宽配置,B = 10 MHz和B = 100 MHz,在时延域中应用Hann滤波来抑制旁瓣。由于时延域的分辨率与所用带宽成正比,因此在较大带宽下可以辨析更多的多径分量。如图3-7D所示,对于小于解析多径分量所需带宽的信道,在整个带宽上具有频率平坦性,这是一个重要的信道属性。通常表征频率选择性的度量是相干带宽,其定义为信道在一定程度上相关的带宽,相关性典型值是大于0.9。对于图3-7中的信道, = 100 ns对应的相干带宽为1 MHz, = 20 ns 对应的相干带宽为5 MHz。

3.2.2 多普勒–时域
多普勒–时域中的信道特性与频率–时延域完全类似。在这种情况下,信道在时间t上的变化由多径分量对应的多普勒频率fD决定。

当在时域中对信道建模时,使用具有不同多普勒频率的不同波的总和。具有不同多普勒频率的主要原因是无线链路的任一端或两端正在移动,当天线朝向(远离)电波方向移动时导致多普勒频率上移(下移)。另一个原因是环境中的重大散射体(如车辆和树木)可能会移动。我们将通过一个信道进行演示,此信道在移动终端周围的水平面具有均匀的方向分布。其所对应的多普勒分布被称为经典多普勒分布,我们有:

其中v是终端速度。与频率–时延域类似,相干时间与RMS多普勒扩展fD成反比,

图3-8所示,是一个经典的多普勒信道,最大频率fDmax = 100 Hz,相干时间是1 ms。图3-8C和图3-8D是增加一条平稳路径的情况,此路径的功率比其他路径的功率总和高10 dB。这种情况对应的应用场景是在具有大量移动散射体的环境中使用静止的发射机和接收机,如在交通繁忙的街道。在这种情况下,相干时间无穷大,因为时间的相关性永远不会低于0.9。


3.2.3 方向域
方向域与多普勒域直接相关:

其中
是速度v和波矢量kl之间的角度。方向信息可以从多普勒信息中的矢量k获得:

其中u是方向单位矢量。实际中,通过对三维空间信道样本进行傅里叶变换,可以获得相应的方向谱,如下面3.3.2.1节所述。
方向扩展通常用方位角和仰角(或极化角)的角度扩展来表征。但是因为角度扩展都是循环的和非欧几里得的,因此角度扩展存在问题。为了克服角度循环的问题,角度范围的切割可以放置在扩展最小的点上。另一个问题更为严重,即角度是非欧几里得变量。当通过方位角和仰角扩展来表征信道时,信道在坐标系的旋转下无法保持不变。
针对上述这些问题,参考文献中提出了另一种方向扩展的定义。它基于三维归一化的多普勒扩展,当扩展很小时,等于角度扩展。方向扩展
定义如下:

其中n对应于三个空间分量(x, y, z),代表了相应方向的扩展。应该注意的是,总扩展
相对于坐标系旋转是不变的。
3.3 试验信道特性
前一节奠定了无线电波传播的理论基础。本节主要是通过试验结果,加深理解和表征真实的移动通信传播信道。为此,需要了解测量技术和分析方法。为了能够完整地表征信道,频率–时延域和多普勒–时域都不可或缺。此外,为了更好地理解和使用天线特性(比如方向图、波瓣宽度和MIMO),还需要信道在空间/方向域进行表征。然而,如上节所述,空间/方向域实际上等效于多普勒–时域。本节将对这些方面做深入讨论。
3.3.1 测量技术
目前有几种或多或少具有先进性的传播测量技术。相应的硬件设计可能会非常复杂。在此会对最常用于测量无线信道响应和传输损耗的设备类型和技术做简要描述。
3.3.1.1 连续波
连续波(Continuous Wave,CW)方法通常仅用于测量传输损耗。它是基于以固定频率发送正弦波信号并在接收机使用窄频滤波器。与高发射功率和接收机的低噪声放大器相结合,从而可能获得非常高的灵敏度。硬件方案通常相对紧凑且简单,可实现以快速方便的方式对大面积范围内不同信号强度进行广泛采样。然而,有一个缺点是,没有解决信道的多径问题,从而导致较大的空间衰落。
图3-9显示了在非视距(NLoS)条件下的街道微蜂窝测量路线中一个5.1 GHz的测量CW信号。为了减少多径引起的衰落,采用了每1.7 m进行滑动平均。
3.3.1.2 矢量网络分析仪
与CW测量相比,矢量网络分析仪(Vector Network Analyzer,VNA)支持最大可能的测量带宽。其基本原理是对超过预定义带宽的信道进行频率扫描采样。为了能够在时延域中提供相应的信道响应,可以很方便地采用离散傅里叶变换(DFT)方法。因为VNA的测量原理是基于测量发射信号和接收信号之间的完全相干比,因此发射机和接收机天线必须通过射频电缆连接到VNA。优点是接收信号与发送信号完全同步,因而可以进行绝对时延测量和长时间的相干平均来抑制噪声。一个实质性的缺点是移动性受到射频线缆的限制。而且,单个频率扫描也许需要几秒钟的时间,具体取决于接收机的SNR,这就需要链路两端是静止的。另一个缺点是范围受限,主要是受到射频电缆对信号衰减的影响,根据频率不同,每米衰减可能有几个dB。然而,通过用光纤替换射频电缆,以及射频光电转换器,测量范围可以极大扩展到很多公里。在图3-10中,针对NLoS微蜂窝街道场景,测量在58.7 GHz的信号带宽为2 GHz的信道响应[22]。在这个具体的测量中,采用光纤将测量范围扩展到100 m以上。大带宽可以解析此信道富多径的大部分分量。


3.3.1.3 基于相关性的信道探测
基于相关性的信道探测器的主要优点是它们都是移动的和宽带的。为此,定期发送专用的探测信号,然后在接收机根据时延进行相关运算。通常,OFDM或伪随机序列与时延滑动相关器一起使用。该技术支持移动和宽带测量。需要在信道采样率和噪声抑制之间取得折中。而且,因为发送信号的相位和幅度都被调制,会受限于放大器的非线性。参考文献中对此类设备有更详细的介绍。
3.3.1.4 方向特性
当载波频率进入到毫米波范围时,信道传播的方向特性将更为重要。由于天线孔径减小使得传输损耗大幅增加,在这些频率上使用全向天线将会大大缩小覆盖范围。因此,需要波束赋形技术在传播方向上集中传输和接收,将损耗减到最小。为达到此目的,在传播测量中主要有两种基本的方法。
第一种方法是使用物理定向天线(如喇叭和抛物面反射器天线),它们在仰角和方位角上旋转以扫描空间角度。这种方法对时变信道条件不敏感,因此适用于CW和基于相关性的信道探测。
第二种方法是使用所谓的虚拟天线方法。该方法利用传播信道的空间采样,通过机器人天线定位系统将单个物理天线移动到不同的空间位置。然后通过阵列天线技术离线确定测量信道的方向特性。这种方法的优点是可以获得非常高的分辨率和对天线旁瓣有很好的抑制。缺点是空间采样意味着测量的时间很长,对于大型天线阵列测量时间可达数小时,因此需要发射机和接收机相位锁定以及静态信道条件。这个方法适用于基于VNA的信道探测。
3.3.2 分析方法
获取高质量的测量数据需要相当大的努力和技巧。但是,如果没有彻底和准确的分析,原始数据几乎没有用处。提供可靠和准确的分析结果比执行实际测量需要付出更多的努力。本节将介绍几种常用的分析方法及其相应的优缺点。此外,本节亦提供了不同测量或频率范围之间的可比性要求。
3.3.2.1 谱分析
谱分析法基于对测量信号和相应功率分布的直接分析,使用傅里叶技术进行频率和时延之间以及多普勒域和时域之间转换,如3.2.2节和3.2.1节所述。可以用定向物理天线或虚拟天线的直接角度信道采样来进行方向分析。
对于平稳信道,空间样本类似于移动终端的时间样本。当在三个空间维度中对信道进行采样时,就有可能确定相应波矢量k的所有三个分量的功率谱。
图3-11给出此方法的一个示例,采用了25^3 = 625个样本的立方虚拟天线。在三个空间方向上使用Hann滤波器,通过DFT将空间样本变换到k域,从而减少了天线旁瓣。通过具有固定半径
的k域立方体过滤掉多余值从而获得相应的方向谱。这种方法对旁瓣的抑制超过50 dB,性能令人印象深刻。相比之下,使用物理天线对旁瓣电平的抑制通常小于30 dB。将测量的信道代入公式(3-7)的离散形式,多维频谱测量信道数据的每个峰值被标识为一个多径分量及与之对应的相位和幅度。室内NLoS场景的一个示例如图3-12所示,其中直接测量的信道与相应的合成信道一起显示,合成信道大约有400个估计的多径分量(MultiPath Component,MPC)。显然,建模信道与直接测量信道吻合得很好。


3.3.2.2 超分辨率方法
假设离散平面波模型公式(3-7)有效,理论上,准确度仅仅受限于信噪比。文献中报道了许多超分辨率方法,其中最受欢迎的是对P的最大似然。相对应的最小化对数似然函数由下式给出:

其中m和n分别为接收和发送端的空间样本,k为频率索引,
和
分别是建模和测量的信道响应,
表示噪声的功率,假设噪声功率在信道样本上服从零均值复高斯分布。为了找到最可能的平面波集合,以最佳模拟测量信道,将模型参数对应的对数似然函数最小化。
因为计算的工作量巨大,实际上不可能对所有模型参数和测量样本进行自由搜索。SAGE是一种通用的降低计算量的方法,它是基于每一次最大似然一个参数并迭代直到找到最小值。这种方法的问题是在角度或时延上很接近的不同平面波具有强相关性。因此,所增加的计算工作量非常大而且收敛很慢。这个问题已通过梯度方法解决,如RIMAX,利用局部最大似然值周围的微分来实现相关参数快速收敛。然而,这种方法的问题是某些相关性或大多数多径分量之间的耦合仍然存在,这意味着需要对所有波同时最大化似然性。参考文献[17]提出了一种解耦多径分量的方法。由于通过该方法还可以减少数据量大小和降阶参数空间,因而获得计算效率多个数量级的改善。该方法的应用示例如图3-13所示,工作频率为5.1 GHz的城市宏蜂窝场景,在基站使用间隔2 cm的10×25个天线单元构造一个虚拟平面阵列。显然超分辨率估计了大部分接收功率。而且,来自基站的主方向波受到散射体散射,散射体主要是树木和建筑物外墙。
虽然超分辨率方法可能解析出高精度的重要离散多径分量,然而,该方法不适用于估计漫射和密集多径的场景的信道分量。这类场景的路径众多,超分辨率方法通常给出的输出非常不准确。因此,在此场景会优先考虑采用谱方法来提供可靠的输出。
3.3.2.3 测量可比性
在世界范围内进行的传播测量的活动数量确实非常多。很多测量结果由研究机构进行统计分析并进行比较和总结。然而,在分析中,重要的是缜密并且确保测量结果具有可比性。参考文献[28]列出了对于不同的活动和频段测量的关键要求:
- 测量带宽相等(提供相等的时延分辨率)。
- 可比较的天线方向图,无论是物理的还是合成的。
- 每个分析领域里功率动态范围相等(例如,时延、角度)。
- 相同的环境和相同天线位置(用于比较不同的频段)。

比如,已经发现带宽相等的要求非常重要,以避免得出频率增加、时延扩展减少的谬论。针对高频毫米波波段的一个基本问题是,在毫米波有很宽的频带可以使用,因此测量带宽相当宽。图3-14展示了分析中需要使用均衡带宽,图中使用了低于主峰值20 dB的动态范围来确定RMS时延扩展。所用的不同带宽对时延扩展的影响相当大,对于2 GHz带宽,时延是7 ns,对于80 MHz带宽,时延是28 ns。需要均衡带宽的原因是,任何强的离散多径分量经过解析都会有一个峰值功率与所用带宽成正比,而对于非解析分量,无论带宽如何都保持恒定。因此当通常使用一个低于主峰的固定动态功率范围进行分析时,使用不同带宽所带来的差异是很大的。

3.3.3 传输损耗测量
由传播效应引起接收信号强度的损耗是无线传播信道的最基本的和最重要的特征之一。本节给出许多来自真实蜂窝网络的测量示例以理解传输损耗,重点关注1~100 GHz范围内的频率依赖性。大部分测量基于全向垂直偶极天线,此种天线对所有频段具有相似的天线方向图。另外,在室外到室内测量中,在室外发射端使用垂直贴片天线或开放波导。在60 GHz频段进行测量时,氧气吸收量约为1.5 dB/100 m,在测量中,将对这种损耗进行补偿。目的是通过在整个频率范围内进行平滑插值/外推以方便建模,并根据需要,将氧气吸收添加到基准模型中。此外,所有测量的损耗以与自由空间损耗的相对值(即超出损耗)表示,以避免天线频率依赖性的影响,而专注于纯粹的传播效果。出于这个目的,所有测量数据都仔细地通过视距(LoS)短距离(0.1~1.0 m)测量进行校准。
3.3.3.1 室内办公场景
该测量示例来自室内办公环境。基本布局如图3-15所示,一条走廊的两边都是办公室。走廊尽头有一个90度的转弯。接收(Rx)天线放置在两个位置,一个位于走廊,另一个位于相邻的办公室房间里。发射(Tx)天线放置在走廊和办公室内的不同位置。建筑物的外墙是砖墙,内墙是石膏板和玻璃。

图3-16总结了传输损耗分析的主要结果。距离1 m处相对于自由空间功率的损耗L,以dB为单位,对应于频率2.44 GHz、5.8 GHz、14.8 GHz和58.68 GHz,包括LoS和NLoS两种不同场景。双参数指数模型:

与所测量的损耗吻合,以dB为单位,其中d是发射机和接收机之间的距离,以米为单位。在3GPP中,相应模型也考虑了频率依赖性:

其中f是以GHz为单位的载波频率。最后两项对应于公式(3-25)中,与频率相关的项L0。从图中可以清楚地看出,测量数据与3GPP模型非常吻合。此外,很明显频率每增长十倍,传播损耗在自由空间损耗上额外再增加约5 dB。

3.3.3.2 室外到室内场景
图3-17为一个在城市环境下进行的室外到室内的多频测量,该测量在一个八层办公大楼中进行。发射机位于建筑物顶层的开放窗口,接收信号的测量是在跨过同一楼层内院的40个室内位置中的两个稍微偏移(30 cm)的测量点进行。建筑物顶层的外墙以金属覆盖。但是,窗户是纯玻璃的没有金属镀膜。

在2.44~14.8 GHz频率之间,建筑物穿透损耗的范围从大约0 dB到 30 dB(如图3-18)。所有频率的穿透损耗的下限是相似的,即大约0 dB,而仅在58.68 GHz下最高损耗高达45 dB。最小损耗,即仅穿透外墙/窗户引起的损耗,范围为0~5 dB,最高值对应于5.8 GHz和58.68 GHz频段。这种对频率的非单调依赖性的效应,也许可以通过以下假设来解释:窗框中的三层玻璃受到多次反射的影响,引起了相长干扰或者相消干扰,导致了衰减随频率变化而周期性变化。随后的测量显示,对应于频率2.44 GHz、5.8 GHz、14.8 GHz和58.68 GHz的信号,窗户损耗分别约为2 dB、10 dB、0 dB和6 dB,这证实了这种效应并解释了测量的最小穿透损耗。而且很显然,对较高频率,穿透损耗的扩展大得多。部分原因可能是由于有些窗户有百叶窗,阻挡了较高频率的垂直极化波,而对于较低频率是透传的。损耗测量结果中的中位数与3GPP模型非常吻合。应该指出3GPP模型没有考虑任何非单调频率效应。此外,随着频率的增加,测量损耗的扩展也增加,这也没有在3GPP模型中考虑。有关室外到室内传播建模的更多细节在3.4.1.1节的信道建模中讲解。
3.3.3.3 室外街道场景
室外街道测量主要在由现代办公建筑物组成的市内街区进行,街区大约长100 m,高25 m,如图3-20所示。测量是在街道峡谷中进行,涵盖LoS和NLoS场景,街道宽度大约为20 m,接收机和发射机天线都位于高于地面约1.5 m处。图3-19中给出了所有频段的超出损耗。在LoS场景,可以观察到高达5 dB(相对于自由空间)的多径增益,在所有频段上都可以获得类似增益。这受益于由于地面和外墙反射所增加的路径。在NLoS区域,即建筑物拐角后面,可以发现超出损耗大幅增加。这个损耗,远低于所预期的街拐角处由于刀口衍射效应产生的损耗,如图3-19所示。此外,频率依赖性远低于预期的衍射情况。这个结果说明在NLoS情况下,主要的传播机制一定与衍射(如镜面和物体或粗糙的外墙引起的漫射)不同。而且对于NLoS数据,在60 GHz补偿氧气吸收引起的损耗是可观的,高达4 dB,这超出了预期的根据链路距离所需要的补偿。但是这可以用重要的反射传播路径的长度远大于链路距离来解释。测量到与频率相关的超出损耗(约3 log f [dB])明显小于预期的刀口衍射(约10 log f [dB])。然而,它略高于3GPP中的信道模型[2]所给出的损耗值(1.3 log f [dB])。

为了进一步了解传播机制,如图3-20所示,在60 GHz的两个测量位置进行了视线跟踪。第一个发射机位置(Tx1)处于NLoS场景,但非常接近LoS场景。第一个到达的路径通过衍射衰减。可以通过假设从沿街的建筑物外墙的镜面反射来重建最强路径。第二个发射机位置(Tx2)实际上在NLoS区域街道更低处。在拐角衍射路径的时延处,没有观察到噪声基底之上的信号。在传播距离远长于衍射路径长度处观察到第一簇弱路径。该簇可能由散射体或街角区域的粗糙表面引起。最强的峰值功率电平比功率时延分布的其余部分高约20 dB。一个看似合理的相应路径(与测量峰值的传播长度相匹配)是可以通过假设建筑外墙四个镜面的反射来重新构建的。这表明镜面路径对NLoS区域也很重要。然而,在大多数NLoS位置,未观察到这种明显的峰值。


3.3.3.4 城市室外屋顶场景
在高频特别是毫米波范围内测量城市室外屋顶传播场景(宏蜂窝场景)的传输损耗非常具有挑战性,因为当使用实际的全向天线时,传输损耗显著增加。这个问题可能通过位于屋顶上方的BS使用定向天线有所缓解。但是,位于地面的UE,由于混入在杂乱的城市,预期在仰角和方位角上的角度扩展都较大。通过加大发射功率来解决问题的方式在实际应用中并不适合毫米波高频。更实用的解决方案是使用非常高性能的LNA。此外,对于CW测量,通过多普勒滤波可以实现非常高的噪声抑制。该技术已用于两个独立的多频测量中,分别在奥尔堡和东京。在奥尔堡的测量中没有观测到频率依赖性。然而,这可能是受最高频率28 GHz处的有限动态范围的影响。在东京的测量中,测量灵敏度在较高频率下更好,允许测量高达67 GHz的频段。
3GPP城市宏蜂窝传输损耗建模主要基于奥尔堡测量,与自由空间有关,由下式给出:

其中d是距离,以m为单位,f是频率,以GHz为单位。ITU-R提供的相应模型见参考文献,以东京的测量为基础,由下式给出:

除了ITU-R模型是与频率相关而3GPP模型不是之外,这两个模型是相似的。城市宏蜂窝场景下,路径损耗通常是频率依赖的还是非频率依赖的还需要进一步考察。
3.3.4 时延域测量
如3.2.1节所述,时延域对于表征信道的频率选择性非常重要。此外,它对于针对优化传输波形的时延扩展至关重要(见第6章)。由于3GPP已选择OFDM用于NR,因此循环前缀长度的优化与信道的时延扩展直接相关。本节介绍测量的宽频范围和重要传播场景下的时延域特性。3.3.4.4节描述一般频率趋势并与3GPP信道模型进行比较。
3.3.4.1 室内办公室
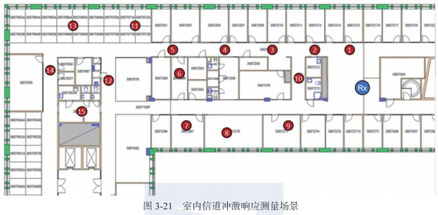
如图3-21所示,在室内办公场景中进行了多频测量活动。接收机放置在固定位置,发射机位于15个不同位置,主要位于NLoS区域。该测量活动满足了不同频率的测量可比性的所有要求(见3.3.2.3节)。在2.4 GHz、5.8 GHz、14.8 GHz和58.7 GHz处测量信道。在图3-22中,同时给出两个Tx示例位置的相应功率时延分布与平均RMS时延扩展DS(随频率变化)。无论在功率时延分布还是在平均时延扩展值中都没有观察到明显的频率趋势。事实上,当与3GPP的模型拟合得很好时这种独立性在95%置信区间内:

其中和是模型参数,f是以GHz为单位的载波频率。拟合图3-22所示的曲线的值是
= –0.01 ± 0.05和 = –7.58。


3.3.4.2 室外到室内
3.3.3.2节所描述的室外到室内测量经过进一步分析以确定时延扩展以及相应的频率依赖性。这里需要着重强调,许多位置的冲激响应的动态范围是受限的,可以低至10 dB以下。这意味着绝对时延扩展有时可能会被低估。但是,因为每个位置所有频率采用同样的动态范围,所以没有引入任何频率依赖性的偏差。如图3-23所示趋势似乎是时延扩展随频率升高而增大。较长的时延可能是由内院的多次反射引起的。强镜面反射是由窗户或覆盖外墙的金属瓦片产生的。但是,在较低频率处这些瓦片或窗户小于一个菲涅耳区,导致这些反射属于非镜面反射,因此在较低频率下会衰减。需要注意的是,这种观察到的频率趋势不是通用的规律,而是某些场景的特定几何状况,正如本节最后所述。

3.3.4.3 室外街道峡谷场景
3.3.3.3节描述的室外街道测量经过分析以确定相应的时延扩展特性,聚焦在NLoS区域。在这个区域的趋势是时延扩展似乎与频率无关,如图3-24所示。拟合的模型确实表明没有明显的频率依赖性。

3.3.4.4 时延域中的频率趋势
到目前为止所有的时延域的试验结果表明,除室外到室内场景外,没有看到明确的频率趋势。之前的结果(如3GPP)表明当频率升高时,时延扩展通常会减小。但是,在开发3GPP模型时,不同频段之间可比性的要求(见3.3.2.3节)并没有完全满足,因此相应的结果可能会受到质疑。欧盟的资助项目mmMAGIC进行了大量的信道测量,并仔细满足了不同频段之间可比性的所有要求。通过统计结合六个组织开展的15次独立测量活动的测量数据,确定了五种场景相应的模型参数。在图3-25中显示了3GPP类型的模型(公式(3-29))与mmMAGIC测量数据的拟合以及3GPP模型相应的数值。两种模型拟合之间存在明显差异,其中3GPP模型参数显示出时延扩展随频率升高而显著减少,而在mmMAGIC的数据中不存在这种趋势。在mmMAGIC数据的95%置信区间,只有街道峡谷中LoS场景下以及室内办公室LoS下才显示出轻微下降的趋势。
3.3.5 方向域测量
正如3.1.2节和3.3.1.4节所指出的,在毫米波范围的高频移动通信需要发射和接收天线采用可定向发射的天线技术。这是由于全向接收天线的孔径与载波波长的平方成正比,因此相应的传输损耗允许的传输链路距离很短。出于这个原因,深入了解无线传播信道的方向特性很有必要,尤其是在高频。本节介绍在某些所选场景下,宽频范围无线信道的高分辨率试验特性。

3.3.5.1 60 GHz下室内办公室宽带结果
图3-26所示为室内办公室场景下58.7 GHz的信道测量数据,使用了3.3.2.1节中描述的谱分析法。为此在链路的发射和接收端使用垂直偶极子(2 dBi增益)天线对信道进行采样。通过3D天线定位机器人提供的大小为25×25×25 = 15 625个天线单元的虚拟天线阵列获得空间样本,空间采样距离为0.4个波长。

测量在室内办公环境中进行,Tx-Rx之间距离为1.5 m,工作频段为57.68~59.68 GHz,在LoS和NLoS两种条件下进行。在进行NLoS测量时,在Tx和Rx天线之间放置2 m×1.2 m大的金属白板。Tx和Rx的位置在LoS和NLoS测量中保持相同。图3-26所示为LoS和NLoS测量的全方向谱。由于LoS测量距离较短,因此直接路径占据主导。相对于LoS测量,NLoS测量在空间上方向分布更丰富,在不同的方向有大约十条左右的强径。然而,除了直接路径和白板阻挡的很少的几条强径之外,这两个测量显示出非常相似的方向特性。在比较光滑(扩散)的背景上,信道似乎是由一些明确方向性的路径合成。似乎在所有方向上都有丰富的漫射路径分布,除了与空无一物的地板(没有家具)相对应的方向之外。
在图3-27中,显示了LoS和NLoS情况下首先到达路径的功率时延分布。首先到达路径在LoS场景中显然占主导地位,而后续的反射路径则在NLoS场景中占主导地位。然而,由于白板上边缘的衍射,在NLoS场景下也存在早期路径,相对于LoS路径被抑制了约40 dB。还有稍晚到达的路径,在白板的下边缘被衍射。在图3-27中的全景照片之上显示了这两种衍射路径。

在分析功率时延分布的4号强峰值时,如图3-28所示,很显然,有一些重要的散射体,如桌子上的物体和书架。还有一些经过窗户和墙壁强反射的路径。比较LoS和NLoS情况,很明显NLoS图中缺少一些高功率的方向,因为相应的路径被白板阻挡。因此,可以得出一个重要的结论,是基于房间几何形状的简单射线跟踪不能模拟由房间内的家具和其他物体引起的富散射。
3.3.5.2 室内办公室多频结果
将上一节的测量结果进行扩展,增加了两个较低的频率5.8 GHz和14.8 GHz。为了能够对所有频率的测量结果进行对比,在所有测量和分析中都需要满足3.3.2.3节的要求。为此,在分析中已经对不同频率的测量带宽进行均衡,这意味着14.8 GHz和58.7 GHz测量数据减少到与5.8 GHz测量数据相同的带宽,都是150 MHz。由于高频可用的带宽要大得多,因此镜面尖峰在较高频率下被放大,这种均衡对于避免功率时延分布的镜面尖峰的影响非常重要。而且,58.7 GHz的测量还受到氧气吸收引起的衰减影响。为了提供适用于频率一致性的信道建模和插值的结果,在分析中,在该频率通过以每100 m传播距离补偿1.5 dB的功率时延分布来消除这种衰减。应该注意的是,虽然链路距离本身并不能激励这种补偿,散射路径的传播距离可能明显更长,如图3-31所示。

LoS场景设置与上一节中的相同。在NLoS测量中,Rx天线被放置在办公空间尽头的一个小厨房里(见图3-29)。在NLoS情况下的Tx和Rx天线之间的距离为14 m。应该注意的是,NLoS场景仅在5.8 GHz和14.8 GHz进行了测量,原因是在测量活动中间,有段时间不允许进入室内环境。所有频率的方向功率谱都惊人地相似。在LoS图中观察到一个与频率有关的小差异,即在零度仰角附近信号功率较强,在5.8 GHz最明显, 在14.8 GHz最不明显。这种差异可以通过窗户的反射来解释,在5.8 GHz处窗户的反射比在其他频率处高很多。NLoS图与LoS图的其中一个差异是主峰周围的漫射簇更集中,有不止一条强方向(径)。另外,接收功率相对于自由空间传播衰减约20 dB。与LoS场景一样,两个测量频率的曲线图仍然惊人地相似。另外一个观察到的频率相关的差异是方位角–50度处的峰值,在5.8 GHz较强,而在14.8 GHz处较弱。对于方位角为–75度的峰值,观察到相反的效果,峰值功率在14.8 GHz时较强,而在5.8 GHz时较弱。这也是受频率依赖性的窗户衰减/反射的影响。

根据3.2.3节的旋转不变定义,为不同的场景和频率可以确定方向扩展
。在图3-30中展示了LoS场景下,方向扩展与传播距离的关系以及相应的功率时延分布。这再一次表明不同频率的分布有多相似。图中所示的方向扩展仅仅包括了功率传播距离的分布,只有在相应传播距离上接收到的信号强度在噪底之上才会包含。基本上在所有频率上都观察到相同的特性。对于LoS尖峰区域,扩展很窄,大约在5度左右。而对其他时延,扩展通常在57.3度饱和,根据定义这是最大可能的扩展,如3.2.3节所示。而对应于发生强反射的几个时延,方向扩展收窄。另一个观察到的明显特点是仰角扩展很快衰减到很小的值。对于较长的时延,方向扩展主要是在x维度,也就是房间尺寸较长的维度。除了较短的时延,不同维度的方向扩展似乎与相应房间长度成正比。可能的解释是较小的房间尺寸,功率衰减得更快,因为墙壁、地板和天花板更频繁地相互作用,导致方向扩展较小。
图3-31为NLoS场景。其特性非常类似于LoS场景。从图中观察到的一个主要现象是,在14.8 GHz传播距离为60 m处有强烈的回波,而在5.8 GHz并未观察到。这个差异的原因是在不同频率窗户的反射/衰减不同。这是由于房间窗户三层玻璃(非金属镀膜)造成的影响。信号在窗户的各层之间多次反射,因此当穿透窗户时,不同频率衰减的程度就有差异。专用的窗户衰减测量,与信道测量结合,显示出在14.8 GHz处的窗户衰减可以忽略不计,而对于5.8 GHz信号窗户衰减约为10 dB。假设14.8 GHz处的强回波是由于路径通过一个窗户出去,然后被邻近的建筑物反射回来,再次通过另外一个窗户到达接收端,这就正好解释了(与5.8 GHz频段相比)20 dB的功率差,刚好是5.8 GHz窗户衰减的两倍。这也解释了当较强无线电波经过邻近建筑物反射,从外面进入房间,为什么在y方向的方向扩展时延会增加,因为沿着房间y维传播的电波功率也随之增加。


图3-32所示为总方向扩展,对应于所有时延的功率总和(使用如图3-29所示的角度分布)。与5.8 GHz和14.8 GHz相比,由于58.7 GHz的LoS链路距离较短(1.5 m),相对较强的LoS峰值在方向扩展(扩展较小)中引入了偏差。为了消除这种偏差,在分析中将58.7 GHz的LoS峰值引入2.5 dB衰减。没有观察到明显的频率趋势。所有频率的特征都非常相似,仰角扩展较小,在10度左右,而x和y维度的方向扩展明显更大,在20~40度之间。此外,对于NLoS场景,y维中的方向扩展明显更大,因为对于14.8 GHz,路径是从建筑物出来然后经过相邻建筑物反射再次进入,而对于5.8 GHz是因为窗户的强反射。

3.3.5.3 5 GHz下城市宏蜂窝室外结果
城市室外宏蜂窝场景中的测量活动如图3-33所示,在5.25 GHz使用的带宽为
200 MHz。在BS使用定向贴片天线,天线增益为7 dBi(90°波束宽度)并采用垂直极化。机器人天线定位系统生成10×25个单元(Nhorizontal×Nvertical)组成的虚拟平面阵列,天线单元间距2 cm(0.35λ),定位系统可提供优于0.1 mm的空间精度。在终端(UE)采用普通的垂直偶极天线。基于3.3.2.2节和参考文献[17]中描述的超分辨率法对测量数据进行分析。
因为天线定位系统对于天线位置的每次改变,都需要花费大约1 s,因此单个UE位置的测量总时间约为7 min。而且,因为在测量过程中有风,因此一些大型树木的晃动影响了测量数据。在特定的时延和到达/离开方向上,由于树木晃动造成的时变,无线电波会出现失真。时变导致的结果是,这些散落在树丛中的无线电波的功率主要呈现出角度随机分布特性,即类似噪声。剩余的相干功率经树木散射后也相应减小,意味着树木的影响被低估。

对于每个UE位置,估计了N = 500个波。如参考文献[18]中所述,通过找到噪底以上角度域的峰值对估计进行初始化。并且设定估计误差的标准偏差要求:角度小于40度,传播距离小于20 m。相应的功率时延分布如3.3.2.2节的图3-13所示,显示出测量信道功率的主要估计。为确保得到一个很可靠的结果,分析的前提是基于路径估计的标准偏差仰角小于2度,并且方位角小于4度。如图3-34所示,估计的平面波叠加在全局照片上。很明显,主径在屋顶上方衍射或从相邻建筑物反射。似乎在LoS条件下BS和UE的主要传播机制都是从相邻建筑物的反射。在一些UE位置(比如UE位置7)屋顶上方的衍射似乎也很重要。

根据3.2.3节中定义的方向扩展如图3-35所示。在这种情况下,z方向上的扩展非常类似于普通的仰角扩展,水平面扩展与一般性方位角扩展非常相似。z方向(仰角)扩展非常小,在1~4度范围内,而在水平面(方位角)扩展介于7~30度之间。

3.4 信道建模
本节讨论在标准化组织(如3GPP、ITU-R)以及其他国际研究项目和网络(如METIS和mmMAGIC)中所定义的常用信道模型。主要关注特别着重于5G特定功能的最新模型上。所有这些模型都是几何随机信道模型(除了METIS基于地图的模型),每种信道都是根据每个参数的概率分布由蒙特卡罗方法生成。为了在空间和时间上实现连续性,在这些维度上随机分布是自相关的。要在全部信道参数和全部自相关函数之间建立全相关矩阵是一项巨大的挑战。此外,要在合适的置信区间内提供合理的值需要大量的测量数据。即使能够提供所需的相关性,进行提供空间一致性所需要的全部自相关的计算量也是相当可观的。在METIS基于地图的模型中采用的另一种替代方法是基于简化的几何射线跟踪。由于模型是完全基于确定性和物理原理,因此模型中全部的相关性和空间一致性都是自动生成的。该模型具备全部重要的散射机制,即镜面反射、衍射、粗糙表面和物体的散射以及室外到室内的穿透。但是该模型的缺点是实现复杂度较高。
随着每次新一代移动通信的出现,信道模型的复杂度也在不断增加。通过更多地利用物理传播信道的自由度,每个新一代技术都能提供更优的性能。在第二代移动通信(GSM)中,由于所用带宽较窄及空间分集程度较低,因此复杂度相对较低。经过第三代和第四代,通过引入例如软切换和MIMO传输,带宽和空间分集技术都得到扩展。
本节主要着重于3GPP和ITU-R研究的最新5G模型。该模型成功地将传输损耗建模扩展到高达100 GHz的毫米波范围。此外还提供了扩展带宽(最大2 GHz)和路径的高分辨率方向特性。尽管某些极高分辨率的特性没有经过充分验证,但模型对于没有使用最大带宽和最窄波束的早期5G网络可能是足够精确的。
3.4.1 5G随机信道模型
本节描述了3GPP为5G在0.5~100 GHz频率范围开发的信道模型,该模型也同样被ITU-R用于IMT-2020。该模型很大程度上是基于上一代建模,也是基于几何的随机信道模型。mmMAGIC信道模型与3GPP/ITU-R模型在很大程度上是一致的,另有些改进和添加。信道Hmn由根据公式(3-7)生成的一组平面波来定义,其中极化幅度为Al,方向为
和
,时延为
,多普勒频率
用相应的随机分布对其进行经验表征。只有LoS分量是由几何确定的。
3.4.1.1 传输损耗建模
传输损耗建模是基于假设链路两端的全向天线都使用由ITU-R建议书P.341定义的基本传输损耗。任何与特定天线方向图有关的建模由合并天线方向图和相应的多径分布来分别处理,多径分布将在下一节介绍。表3-1总结了模型的传输损耗(在ITU-R和3GPP规范中被称为路径损耗)特性。这些模型大部分经3.3.3节所介绍的室内办公室和街道峡谷场景的测量验证。对于LoS场景,路径损耗接近于自由空间损耗,直到一个断点,之后路径损耗与40 log(d)成正比。在NLoS条件下,对于城市宏蜂窝(Urban Macro,UMa)和农村宏蜂窝(Rural Macro,RMa)场景,相比于自由空间,路径损耗与频率无关。但是,对于室内和街道峡谷场景,相比于自由空间,路径损耗会随着频率升高而略微增加。



进一步,假设在距离相关函数中损耗的位置变化服从对数正态随机分布。对应的标准偏差范围在4~8 dB之间。这些变化在空间上通过指数自相关函数关联:

其中d为空间上两个点之间的距离,dcor为常数。
建筑物穿透损耗LO2I由下式建模:

其中和分别为建筑物外墙玻璃和混凝土面积的比例,Lglass和Lconcrete为多层窗户和混凝土对应的损耗,为水平穿透到建筑物深度为d2D-in的每米穿透损耗。在3GPP和ITU模型中=0.5 dB/m。由mmMAGIC进行了更深入的分析,表明均匀分布在0.5~1.5 dB/m之间。人们发现建筑物可以分为高损耗和低损耗两种类别。高损耗类的建筑物称为“热效率”,其对应的建筑材料和施工方法会造成很大的穿透损耗。尤其是用于阻挡透过窗户的热辐射而采用的薄金属镀膜也会使无线电波衰减20~30 dB。而低损耗类则对应于使用无镀膜窗户的传统建筑物。外墙建筑材料造成的损耗Lm由下式给出:

对应的材料参数在表3-2中列出。

假设由于建筑物内部的不规则性(诸如家具、内墙、电梯井等),穿透损耗的对数正态分布位置发生变化。对应的标准偏差分别为:低损耗
=4.4 dB,高损耗
=6.5 dB。mmMAGIC模型通过引入如下频率相关的标准偏差,对这种变化进行了细化:

其中对于低损耗类k估计为0.08 dB/GHz。
对于位置变化分布水平5%、50%和95%,在图3-36中展示了两类建筑物(传统的和热效率的)在3GPP模型中穿透损耗随频率的变化。为了便于对比,图中显示了ITU-R建议书P.2109中的建筑物入口损耗。ITU-R模型是基于大量测量数据的经验模型,而3GPP模型是基于简化的物理原理。在50%水平,对于低于50 GHz的频率,两个模型非常一致。但是,3GPP模型的频率趋势明显更强。这可以用表3-2中的值来解释,传统窗户的玻璃总厚度为24 mm,而热效率窗户的玻璃总厚度为36 mm。这大约是真实建筑物中玻璃厚度的三倍。还可以明显看出ITU-R模型反映了扩展随频率升高而增加,而3GPP模型则不存在这种趋势。
在3GPP和ITU-R IMT 2020模型中,传播入射角相对于外墙的依赖性通过在公式(3-31)中增加5 dB常数来说明,因此,损耗分布的扩展减少。这可以在图3-36中清楚地看到,对于ITU-R建议书P.2109的模型,5%和95%概率水平明显移动得更多。由于该建议书是为支持例如IMT和卫星之间的频谱共享研究而制定的,仰角的依赖性由下式说明:

其中为路径相对于外墙的仰角,为常数,用大约20 dB/90度来估计。

3.4.1.2 多径方向性和时延建模
多径分量的幅度、时延和方向的分布是基于封闭形式随机分布的一阶和二阶矩产生的。而且,这些分布分为两个层面:簇和簇之间和一个簇之内。这意味着在较高层面生成关于簇的多径分量随机分布。在较低层面生成簇之内的相应分布。用两个层面来描述簇的动机是沿承了基于功率时延分布的观察。然而在与高分辨率试验数据相比时,会对拓扑的合理性产生怀疑。
在时延域,簇的概率和功率服从叠加有对数正态阴影的指数衰落的分布。在角度域,即仰角和方位角,分布由簇功率的高斯函数包络。当在同一方向上有多个簇的概率降低时,也就是与试验数据相反时,这就有点问题。在基线模型中每个簇包含20个多径分量。这些分量以簇为单位有固定时延,除了两个最强簇被细分为三个有固定时延的子簇。每个簇中的全部20个子径有固定的功率,并且有列表分布来提供角度上的拉普拉斯功率分布。图3-37给出了NLoS 60 GHz室内办公场景(与3.3.4.1节的场景相同)下,方位角和传播距离的多径分量分布。图中包括超高分辨率测量数据和相应的3GPP模型实现。测量在办公室环境下进行,使用50 cm宽、12.5 cm高的平面阵列,2 GHz带宽,在方向上提供超高分辨率。很明显测量分布并没有显示出时延较长的簇偏离主方向的影响。当使用窄波束天线时该模型特性可能导致时延扩展不真实地减少。

很明显每个簇使用20个具有固定时延子径的基线模型所合成的输出与高分辨率测量不能很好地匹配。如图3-38所示,当考虑到多径分量的功率有序分布时这一影响更为明显。在测量中MPC的功率随功率排序的数目增加而大幅衰减。在MPC数量为20时,测量的功率低于最大功率7 ~15 dB,而3GPP基线模型没有相应的衰减。这会有问题,但当扩展到大的阵列或者每个MPC使用极窄波束时,问题可以得到解决。相应的空间复用性能,例如干扰抑制或者MIMO容量,将会不真实地好,如参考文献[29,20]中信道建模章节所述。出于这个原因,3GPP为非常大的天线阵列或大带宽提供了多径分量可选建模方案。簇的分布保持与基线模型相同。然而在每个簇中,存在大量的MPC。其中角度和时延是均匀分布的。在角度上使用拉普拉斯函数并且在时延上使用指数函数对分量的功率进行加权。该可选方案的结果如图3-37和图3-38所示。可以明显地看出高分辨率可选方案的MPC功率分布更符合实际。而且在簇中的角度和时延分布也更符合实际。
在3GPP模型中显示了多数场景下方向性和时延扩展的频率强依赖性降低。这一随频率变化的趋势并没有在3.3.4节和3.3.5节的测量中确认。对观察到的趋势的解释可能是,3.3.2.3节所描述的所有确保不同频段之间可比性的要求,在测量时不能总是得到满足,而测量是3GPP模型的基础。如3.3.4.4节所指出,mmMAGIC所做的非常彻底的分析表明,时延扩展没有随频率变化的趋势或者仅有非常弱的变化。

3.4.1.3 空间一致性
为了在移动性的情况下提供真实的模型输出,即当UE移动时或者在MU-MIMO场景下,使用公式(3-30)来修正信道实现的空间分布。对于基线模型,仅修正簇间参数。然而,对于高分辨率可选模型,簇内的参数也要修正。相关距离范围为10~50 m,取决于参数和场景。该方法确实使得信道随UE的移动而连续变化。然而不能确保变化反应实际情况,如在多普勒和生灭过程中。例如对于室外用户,信道状态可能是平稳的,直到用户移动到街道十字路口拐角附近。对于室内用户,当从一个房间移动到另一个房间时,可能有同样的影响。这可能对基于动态无线信道的波束跟踪技术的优化产生重要影响。出于这个原因,下一节将用阻挡模型提供一个更实际的基于几何的选项。
3.4.2 基于几何的建模
为了提供真实的动态信道输出,METIS项目开发了一个替代信道模型,该模型基于环境的3D几何并结合电磁材料特性和简单的射线跟踪。该模型(阻挡模型)的一个分量对用实际的方法描述路径的动态生灭过程特别有用。
3.4.2.1 阻挡
正如之前指出的,当频率升高时需要高天线增益和相应的窄波束来补偿天线孔径的减小。因此,在某个时刻移动的物体突然阻挡了主波束将导致接收信号的急剧减小。出于这个原因,METIS开发了一个阻挡模型,该模型后来被3GPP作为一个额外的功能采纳。该模型基于通过矩形屏幕的3D衍射,其中每个MPC的信号衰减基于相应路径的几何结构。模型基于标准封闭数学表达,使其简单且计算高效。
后来,mmMAGIC通过考虑4个边缘路径上的相位差而显著改进了METIS阻挡模型,可以为几乎全部几何结构提供精确的输出。这与标准的菲涅尔近似相反,菲涅尔近似仅在Tx和Rx之间距离较大且方向与屏幕垂直的情况下提供精确的输出。mmMAGIC模型由于其一般有效性和良好的精确度,而被ITU-R建议书P.526所采纳。
图3-39给出了4 GHz 4 m×4 m屏幕下两种模型的输出。可以清楚地看到mmMAGIC模型提供了高精确度的输出,因为该模型近乎完美地遵循了严谨的Kirchoff积分解。METIS阻挡模型的输出贴近mmMAGIC模型的峰值,意味着在一定程度上低估了损耗。但是,mmMAGIC模型的平均信号强度大多在METIS模型的3 dB之内。考虑到METIS模型要简单得多,在许多情况下该模型可能是首选的。

3.5 总结和展望
过去的10年中,为了5G移动通信的开发和优化需要理解和表征传播特性,从而进行了大量的测量和建模工作。主要挑战之一就是理解载波频率从传统的2 GHz左右上升到高于80 GHz时传播特性如何改变。即使在高频许多传播特性也非常类似,天线的尺寸会随波长而变化。因此,任何类型天线的孔径都与波长的平方成正比,这意味着接收功率以相对于入射波功率–20logf [dB]的比例变化。在频率从2 GHz增加到80 GHz时,损耗增加超过30 dB。但是,通过利用阵列天线的可用面积或者其他波束赋形技术,可以补偿频率升高带来的传输损耗甚至转化为增益,如3.1.2节所述。为了优化利用方向域的先进天线发射技术,重要的是相应的信道建模要贴近实际。如本章所示,在过去几年中这一领域的知识积累取得了长足进展。这些知识主要用于5G建模,支持3GPP和ITU-R,确保最初5G蜂窝通信系统成功开发和优化。5G系统的后续版本中采用更高频率和更窄波束,对信道建模的精确度提出了更高要求。出于这个原因,在一些领域中改进传播模型是很有价值的,以确保移动通信系统长期的成功发展和优化,下面对这些领域进行了总结:
- 当前时延域和方向域的高分辨率信道特性建模大部分都比较随意。与相应测量数据对比,很明显在多径分布的结构和分簇上存在明显差异。尤其是在室外和室外到室内的场景下,链路两端角度和极化的联合分布特征描述欠佳。
- 为了得到可能的优化方案以快速适应多径分量生灭过程的波束赋形,信道的动态变化包括传输损耗的精确信息的重要性随着载波频率升高而越来越高。支持该建模的试验数据大部分缺少重要场景和频率范围。
- 缺乏对不同传播机制的传输损耗依赖性的理解,尤其是非镜面散射。很明显在大多NLoS情境下衍射不是很显著。然而,并不准确知道散射主要是由什么引起的。而且,并没有很好地理解超出自由空间损耗的损耗在多大程度上存在频率依赖的趋势,尤其对于宏蜂窝场景。而且对高度的依赖关系理解也不充分。
- 由于大多蜂窝网络部署在室外,而80%的用户处于室内,因此室外到室内场景非常重要。为了表征穿透建筑物的额外损耗而进行了大量的测量。由于世界各地分布着大量不同类型的建筑物,对更多测量数据仍然有很大需求。此外,入射角和极化的效果表征欠佳,激发了进一步试验研究的积极性。
- 新的传播场景对5G愈发重要。例如在工厂里,或者无人机之间,或者无人机与地面的机器类型通信最近备受关注。这些场景并没有很好地得到表征,需要更多的试验数据。
这些只是已确定的未来工作领域的例子。许多其他的领域今天还难以预见到,有可能在未来变得很重要。然而,事实是传播的深厚知识日益重要,因为电磁波传播的更多自由度已应用到移动通信中,作为建模基础的所有试验数据在未来将非常有价值。
参考文献


